Trilocale in vendita

Teglio, Via Falck - Tresenda
€ 52.000
3 locali 3 locali
83 Mq 83 Mq
1 bagno 1 bagno

Trilocale in vendita

Teglio, Via Falck - Tresenda

Descrizione annuncio

TRESENDA (TEGLIO) - VIA FALCK

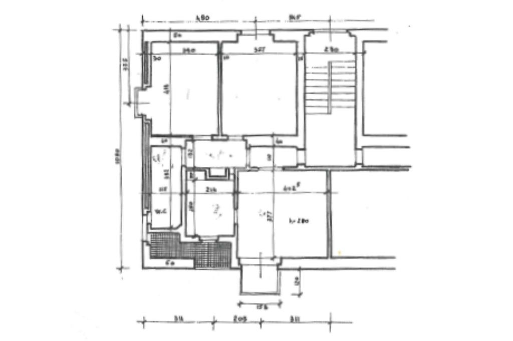
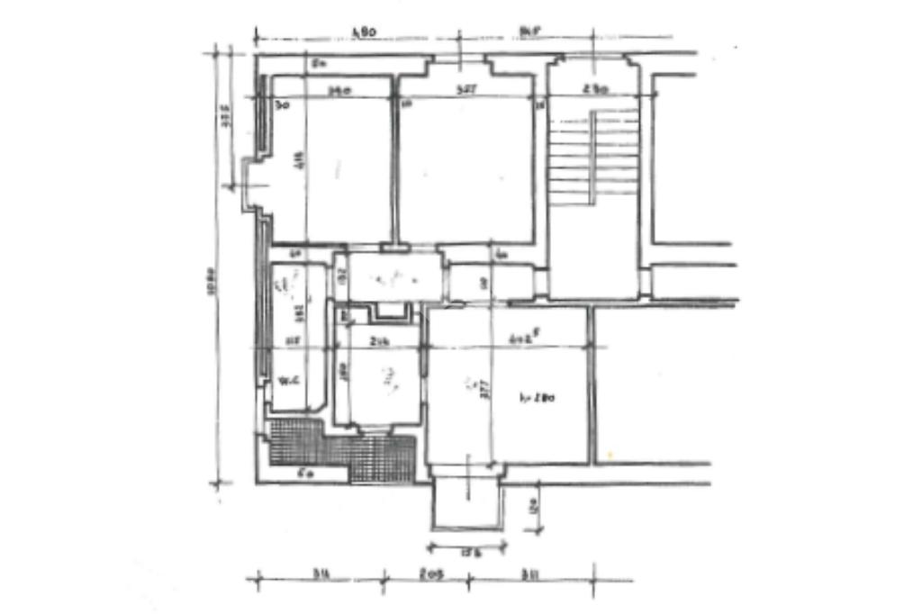
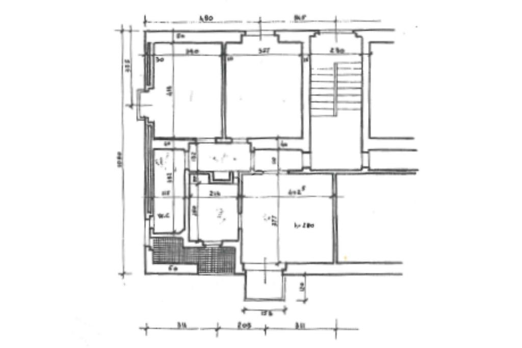
In una zona residenziale tranquilla, proponiamo in vendita un appartamento trilocale situato al secondo ed ultimo piano di una piccola palazzina composta da sole quattro unità abitative, priva di spese condominiali.

L’ingresso si apre su un disimpegno che ci accompagna alle varie stanze. La zona giorno è composta da un soggiorno luminoso, dal quale si ha accesso ad un cucinotto separato dotato di una piccola veranda chiusa che può essere sfruttata come angolo lavanderia o spazio multiuso.

La zona notte è composta da due camere da letto e da un bagno finestrato con vasca.

A completare la proprietà vi sono un giardino privato, perfetto per trascorrere momenti all’aperto, un posto auto riservato all'interno dell’area condominiale e una cantina al piano seminterrato, utile come spazio di deposito.

Mostra tutto

Nelle vicinanze

Trasporto pubblico Trasporto pubblico
Tresenda-Aprica-Teglio
Tresenda-Aprica-Teglio
420 m
Trasporto pubblico
460 m
Ricariche auto elettriche Ricariche auto elettriche
Albergo Miravalle Teglio
1,8 Km
Scuole Scuole
Scuole
400 m
Farmacia Farmacia
Farmacia
460 m
Supermercati Supermercati
Crai
470 m
Alimentari Valli
2,0 Km
Negozi Negozi
Negozi
2,3 Km
Bar Bar
Bar Sport
2,0 Km
Gran Bar
2,3 Km
Ristoranti Ristoranti
Ristorante Tunina
1,1 Km
Galeda
2,0 Km
Marameo
2,0 Km
San Pietro
2,1 Km
Agriturismo "Il Vecchio Torchio"
2,2 Km
Mostra tutto

Caratteristiche

Rif.:
61116103
Piano:
2 di 2 (ultimo Piano)
Posti auto:
1
Balconi:
3
Camere da letto:
2
Arredamento:
Assente
Mostra tutto
Prezzo Prezzo
€ 52.000
Rata mutuo Rata mutuo
€ 240 / mese
Spese annue Spese annue
€ 0
Proponi il tuo prezzoProponi il tuo prezzo
Immobile valutato con TecnoValore

Classe Energetica

G
G
G
G
G
G
G
G
G
EP globale non rinnovabile:
463.52 kW h/m² anno
EP globale rinnovabile:
0.00 kW h/m² anno
EP invernale del fabbricato:
EP estiva del fabbricato:
Anno di costruzione:
1960
Riscaldamento:
Autonomo
Tipo impianto:
A radiatori
Tipo alimentazione:
Metano

Ti interessa visionare l'immobile?

Fissa un appuntamento  Fissa un appuntamento

Richiedi informazioni

* Questi campi sono obbligatori

Calcola il tuo mutuo

Semplice e senza impegno
Anticipo

( % )
Mutuo

( % )

pochi semplici passi

inserisci i tuoi dati
Questionario completato
Grazie per aver richiesto un appuntamento senza impegno con un nostro Consulente del Credito e Assicurativo.

Hai inserito correttamente tutti i dati necessari e a breve riceverai una e-mail con un link da convalidare per inviare i tuoi dati.
Affiliato
Tecnotirano Srl
Viale Italia, 92 23037 Tirano (SO)

Il nostro staff


  • Francesco Fanchetti
    Affiliato

  • Giacomo Gianoncelli
    Responsabile

  • Chiara Garbellini
    Coordinatrice

  • Alex Signorelli
    Collaboratore

  • Giulia Tolotti
    Collaboratrice
Viale Italia, 92 23037 Tirano (SO)
Zona: Tirano
Mostra su mappa
Affiliato
Tecnotirano Srl
Viale Italia, 92 23037 Tirano (SO)

2025 Tecnocasa Franchising S.p.A. - P. IVA 08365160152 - Via Monte Bianco 60/A 20089 Rozzano (MI). Ogni agenzia ha un proprio titolare ed è autonoma. Privacy policy | Policy utilizzo | Cookie policy