Casa indipendente in vendita

Mazzo Di Valtellina, Via San Matteo
€ 289.000
Prezzo aggiornato
5 locali 5 locali
268 Mq 268 Mq
2 bagni 2 bagni

Casa indipendente in vendita

Mazzo Di Valtellina, Via San Matteo

Descrizione annuncio

MAZZO DI VALTELLINA - VIA SAN MATTEO

A pochi minuti dal centro di Mazzo di Valtellina, lungo la strada che porta al Passo del Mortirolo, proponiamo in vendita questa affascinante casa indipendente in sasso, tipica dell'architettura del luogo. Immersa in un contesto tranquillo e circondata dal verde, rappresenta la soluzione ideale per chi cerca autenticità, spazio e comfort.

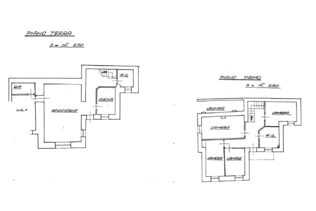
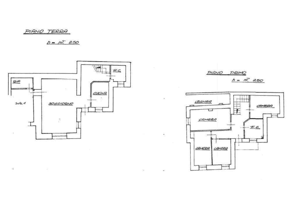
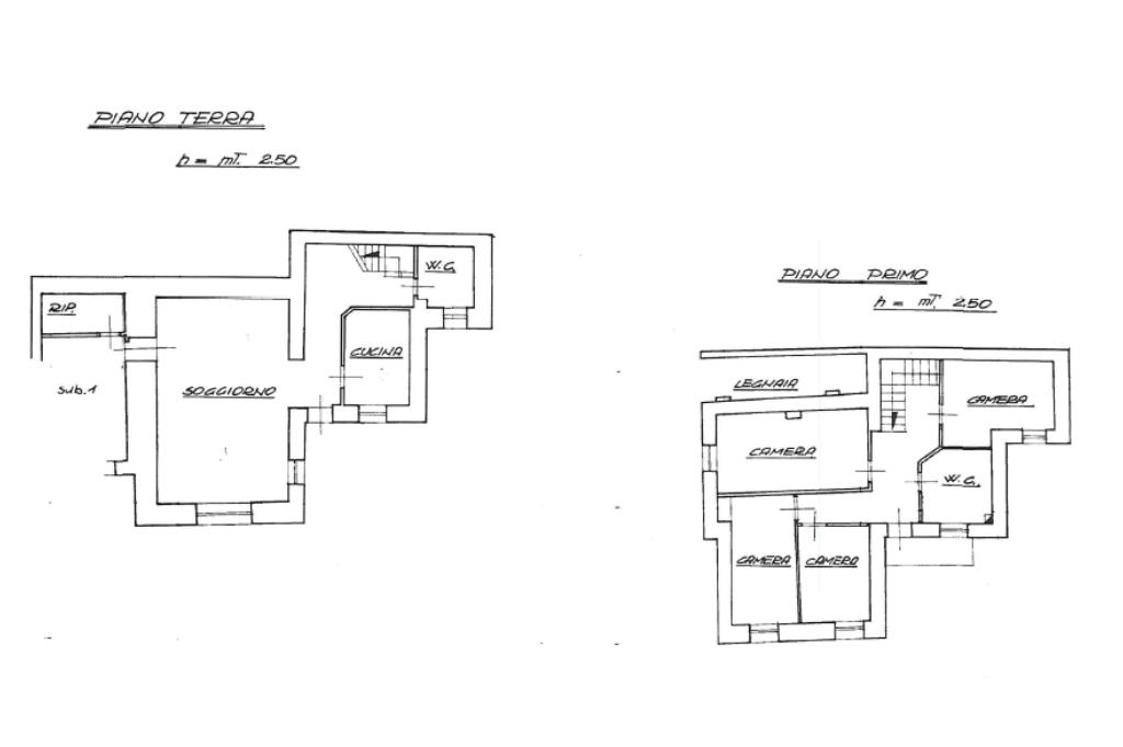
L’abitazione si sviluppa su più livelli e accoglie al piano terra una cucina separata e un ampio soggiorno con sala da pranzo, impreziosito da caratteristiche volte e da un camino che dona calore e atmosfera agli ambienti. Sempre al piano terra si trova un bagno finestrato con doccia, comodo e funzionale.

Al primo piano, la zona notte offre quattro camere da letto ben distribuite, ideali per ospitare famiglia e amici, oltre a un secondo bagno e a un balcone accessibile dal disimpegno centrale, perfetto per ammirare il paesaggio circostante.

Completano la proprietà un terrazzo abitabile, ideale per pranzi all’aperto e momenti di relax, un box auto, un magazzino e un terreno di circa 2300 mq situato subito dietro la casa, perfetto per chi desidera coltivare o semplicemente godere di ampi spazi verdi.

La casa è accessibile tutto l’anno ed è perfetta sia come prima abitazione che come rifugio per le vacanze, grazie alla sua posizione strategica, tra natura e servizi, nel cuore della Valtellina.

Mostra tutto

Nelle vicinanze

Trasporto pubblico Trasporto pubblico
Trasporto pubblico
1,8 Km
Ricariche auto elettriche Ricariche auto elettriche
Comune di Grosotto
2,2 Km
Scuole Scuole
Scuole Elementari
2,5 Km
Mostra tutto

Caratteristiche

Rif.:
61113218
Piano:
2 di 2 (Piano su più livelli)
Box:
1
Posti auto:
2
Balconi:
1
Terrazzi:
1
Mostra tutto
Prezzo Prezzo
€ 289.000
Rata mutuo Rata mutuo
€ 1.350 / mese
Spese annue Spese annue
€ 0
Proponi il tuo prezzoProponi il tuo prezzo

Classe Energetica

G
G
G
G
G
G
G
G
G
EP globale non rinnovabile:
327.15 kW h/m² anno
EP globale rinnovabile:
0.00 kW h/m² anno
EP invernale del fabbricato:
EP estiva del fabbricato:
Anno di costruzione:
1960
Riscaldamento:
Autonomo
Tipo impianto:
A radiatori
Tipo alimentazione:
GPL

Prezzo ridotto di €1 (2%%)

Ti interessa visionare l'immobile?

Fissa un appuntamento  Fissa un appuntamento

Richiedi informazioni

Clicca su Leggi per aprire l'informativa
* Questi campi sono obbligatori

Calcola il tuo mutuo

Semplice e senza impegno
Anticipo

( % )
Mutuo

( % )

pochi semplici passi

inserisci i tuoi dati
Questionario completato
Grazie per aver richiesto un appuntamento senza impegno con un nostro Consulente del Credito e Assicurativo.

Hai inserito correttamente tutti i dati necessari e a breve riceverai una e-mail con un link da convalidare per inviare i tuoi dati.
Affiliato
Tecnotirano Srl
Viale Italia, 92 23037 Tirano (SO)

Il nostro staff


  • Francesco Fanchetti
    Affiliato

  • Giacomo Gianoncelli
    Responsabile

  • Chiara Garbellini
    Coordinatrice

  • Alex Signorelli
    Collaboratore
Viale Italia, 92 23037 Tirano (SO)
Zona: Tirano
Mostra su mappa
Affiliato
Tecnotirano Srl
Viale Italia, 92 23037 Tirano (SO)

2026 Tecnocasa Franchising S.p.A. - P. IVA 08365160152 - Via Monte Bianco 60/A 20089 Rozzano (MI). Ogni agenzia ha un proprio titolare ed è autonoma. Privacy policy | Policy utilizzo | Cookie policy